Na predaj: kvalitný 4-izbový bungalov v obľúbenej lokalite Most pri Bratislave
Ponúkame na predaj moderný, kvalitne postavený 4-izbový tehlový bungalov situovaný v tichej novej ulici v obci Most pri Bratislave – jednej z najvyhľadávanejších lokalít v bezprostrednej blízkosti Bratislavy.
Dom je ideálnou voľbou pre rodinu, ktorá hľadá komfortné bývanie s výbornou dostupnosťou do mesta a kompletnou občianskou vybavenosťou.
Základné informácie
- Úžitková plocha: 127,73 m² (vrátane zastrešenej terasy 14,42 m²)
- Zastavaná plocha: 156 m²
- Pozemok: 610 m²
Technické prevedenie a vybavenie
- Tehlová stavba: 30 cm tehla + 20 cm EPS zateplenie
- Kvalitný tesársky krov, izolácia 30 cm minerálnej vlny
- Veľký pochôdzny úložný priestor v podkroví
- Podlahové teplovodné vykurovanie
- Tepelné čerpadlo Panasonic 7 kW
- Podlahy: 10 cm izolácia + liaty poter od Knauf
- Plastové okná Salamander, 3-sklo, posuvný systém na terasu
- Komín Schiedel – príprava na krb
- Predpríprava na:
- exteriérové žalúzie
- klimatizáciu (4x)
- alarm, kamery
- fotovoltiku
- nabíjačku pre elektromobil
- saunu, bazén, záhradný domček
- Príprava na bidetové sedátka (Geberit AquaClean)
- Optický internet, kompletné inžinierske siete
- Vonkajší nezamŕzajúci ventil
- Odvod dažďovej vody do trativodov
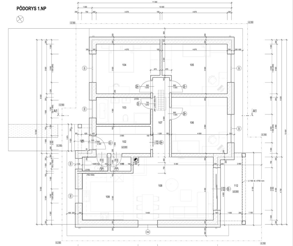
Dispozícia domu
Dom je prakticky rozdelený na dennú a nočnú časť:
- Závetrie: 3,02 m²
- Zádverie: 7,78 m²
- Samostatné WC: 1,85 m²
- Technická miestnosť: 1,50 m²
- Chodba: 6,72 m²
- Obývacia izba s jedálňou: 25,97 m²
- Kuchyňa: 12,93 m²
- Kúpeľňa (vaňa + sprchový kút + WC): 7,14 m²
- Spálňa: 15,14 m²
- Izba: 15,49 m²
- Izba: 15,80 m²
- Zastrešená terasa: 14,42 m²
Lokalita
Obec Most pri Bratislave ponúka výborné bývanie v blízkosti hlavného mesta s kompletnou občianskou vybavenosťou.
V pešej dostupnosti nájdete:
- potraviny (Billa, Lidl, Kraj, Biedronka)
- drogérie, služby, reštaurácie
- detské ihriská a športoviská
- zastávky prímestskej dopravy
V obci sa nachádza:
- materská a základná škola
- zdravotné stredisko
- cyklotrasy, jazero na rekreáciu
- kompletná infraštruktúra pre pohodlný život
Cena
389.000 € – holodom (vrátane oplotenia a trativodov)
Možnosť dokončenia:
- exteriér (dlažby, chodníky)
- interiér na kľúč (štandard podľa výberu klienta)
Kontakt
📞 0948 326 777
📧 info@chcembyvat.eu
🌐 www.chcembyvat.eu
Property Details
- tehla
- kvalita
- blízko D4
Property Amenities
- super lokalita, pešo obchody, služby
- Príprava na alarm, kamery, krb, fotovoltiku, elektrickú nabíjačku na auto
- kvalitná tehla
- krásny rohový pozemok
