Ponúkame ideálny tehlový 4-izbový byt s terasou vo veľmi vyhľadávanej lokalite: Rovinka – obľúbené bývanie takmer v Bratislave.
Hľadáte komfortné bývanie mimo ruchu mesta, no s rýchlou dostupnosťou do Bratislavy? Tento 4-izbový byt v Rovinke vás presvedčí kombináciou priestoru, pokoja a praktickej dispozície.
Byt sa nachádza v pokojnej časti obce, len cca 10 km od centra Bratislavy, s kompletnou občianskou vybavenosťou na dosah a výborným napojením na D4/R7.
Základné parametre:
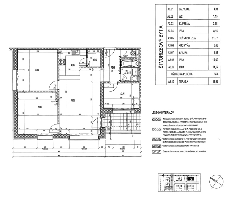
• výmera bytu spolu 88,7m² – úžitková plocha 76,78 m² + terasa: 11,92 m² – ideálna na rannú kávu aj večerný relax
• poschodie: 2/2 (žiadni susedia nad vami)
• novostavba (cca 10 rokov)
• orientácia: východ / západ – svetlo počas celého dňa
Dispozícia, ktorá dáva zmysel:
• 3 samostatné izby – ideálne pre rodinu aj home office
• priestranná obývačka prepojená s kuchyňou a jedálňou
• kuchyňa so vstavanými spotrebičmi + praktická komora
• kúpeľňa s vaňou + samostatné WC
• vstupná chodba s dostatkom úložného priestoru
• terasa so vstupom z obývačky
Technický stav a vybavenie:
• vlastné kúrenie (plynový kotol) – kontrola nad nákladmi
• klimatizácia pre komfort v lete
• udržiavaný, nízkopodlažný bytový dom
• tiché a príjemné bývanie bez zbytočného ruchu
Parkovanie:
• parkovacie miesto priamo pred vchodom – možnosť dokúpenia za 9.000 Eur
Byt sa predáva čiastočne zariadený / dohodou.
Mesačné náklady pre 4 osoby do 200 Eur / mesiac.
Lokalita, ktorá vám uľahčí život:
• detské ihrisko hneď pri dome
• obchody – Billa, pekáreň, DM, reštaurácie, služby aj škôlka v pešej dostupnosti
• blízkosť jazera a hrádze – ideálne na šport aj oddych
• rýchly prístup do Bratislavy ako cez R7, tak aj cez D4 aj priamo do BA – cca 4 min. autom do Biskupíc – ako je LIDL a Mcdonald
Pre viac info a pre obhliadku nás prosím kontaktujte na 0948 326 777, info@chcembyvat.eu, www.chcembyvat.eu
Property Details
- klimatizácia
- terasa
- parkovanie
Property Amenities
- vlastný plynový kotol
- blízko obchody
- výborná prístupnosť na D4 a R7
- terasa / väčší balkón
