[ID-84] dvojdom pri Malackách, 129m2 ú.p.

€265,000
  • predaj dom malacky gajary pri bratislave
  • predaj dom malacky gajary pri bratislave
  • predaj dom malacky gajary pri bratislave

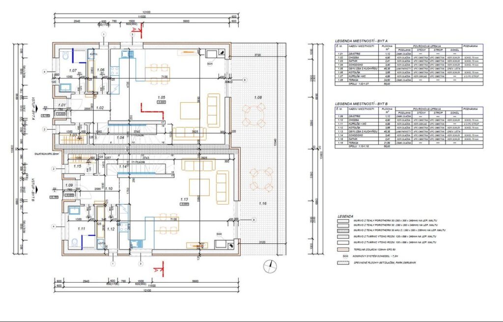
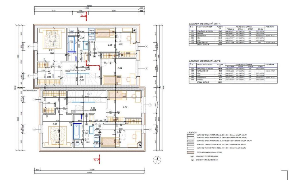
Ponúkame na predaj polovicu dvojdomu – kvalitný, murovaný poschodový dom s úžitkovou plochou celkovo až 150m2. Vnútorná úžitková plocha domu 1.NP + 2.NP je 129m2 + 22m2 terasa aj s predprípravou na zimnú záhradu – v terase je už zabudované podlahové vykurovanie. V dome je teplovodné podlahové vykurovanie a zdroj tepla je tepelné čerpadlo.

Dom je postavený z tehly 30 cm – Porotherm profi + 15 cm zateplenie EPS. Medzi dvojdomami je dvojitá stena a minerálna vlna – je vysokokvalitne odhlučnený. Do domu je už natiahnutá aj optika – internet / TV.

Dom má kvalitné okná Rehau Synego – 7 komorové, trojsklo – farba antracit.

Dom je ešte aktuálne vo výstavbe, momentálne sa dokončuje už do holodomu – výhoda, že sa dá počas výstavby ešte niektoré veci upraviť presne na mieru. Jedna polovica dvojdomu je už predaná, ide o veľmi kvalitný proces stavby.

Lokalita: ide o výbornú časť obce Gajary, škola, materská škola aj občianska vybavenosť výborné dostupná na pešo. Obec Gajary je vzdialená iba 6 km od Malaciek a cca 30min. autom od Bratislavy / 34 km od OC Bory Mall /. Ide o príjemnú a tichú lokalitu s kompletnou občianskou vybavenosťou.

Neváhajte a dohodnite si obhliadku domu: 0948 326 777, www.eco-domov.sk

Dohodnite si obhliadku

Property Details

  • Podlažia: 2
  • WC: 2
  • Parkovanie: 2

Property Amenities

  • murovaný dom
  • 300m2 pozemok
  • 150m2 úžitková plocha
  • terasa