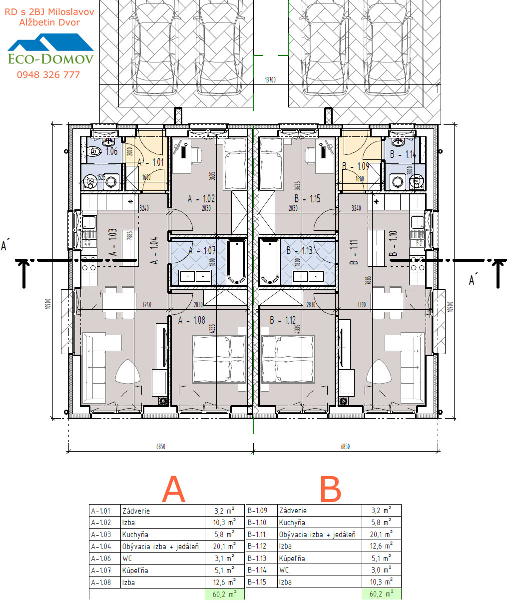
AKCIA – predpredaj! Ponúkame na predaj domy s dvomi bytovými jednotkami – 3 izbové, kde úžitková plocha jednej polovice je 60m2 + možnosť terasy 12m2 / oddeľovací múrik bude vybudovaný medzi terasami v cene/ – kvalitný bungalov s dvojitou akustickou tehlou a izoláciou. Ide o murovaný dom- 30 tka tehla Portherm Profi + 15 EPS polystyrén zateplenie, kde k jednej polovici dvojdomu je pozemok o výmere cca 300m2. Ide o krásnu už zastavanú časť veľmi obľúbenej a vyhľadávanej obce Miloslavov – Alžbetin Dvor.
Vykurovanie je podlahové – tepelné čerpadlo, okná 6-komorové trojsklo, vypínače/zástrčky – Legrand. Domy budú buď v prevedení holodom + s možnosťou dokončenia aj štandardu – obklady, dlažby, sanita a interiérové dvere. Oplotenie, trativody, parkovanie – zámková dlažba nie je v cene – možnosť dokončiť aj exteriér. Tiež ponúkame možnosť vybaviť domy aj fotovoltickou elektrárňou buď navýšením ceny domu, alebo aj na splátky.
Lokalita: V obci je kompletná občianska vybavenosť, škola, škôlky, obchody, OC Miloslavov – Billa, pekáreň, barber, drogéria, autoumývarka a iné prevádzky. Miloslavov je výborné dostupný autom aj vďaka obchvatu D4, ale tiež aj autobusom a vlakom.

Financovanie je možné cez Hypoúver – zabezpečíme vybavenie hypotéky.
Využite predpredajovú akciu a dohodnite si osobné stretnutie, pre viac info volajte na 0948 326 777, info@chcembyvat.eu, www.eco-domov.sk
Property Details
- 300m2 poz.
- dvojdom
- vlak
Property Amenities
- Príprava na internet, TV
- Príprava na alarm
- Príprava na krb
- 2 prívody vody
